码头设计图自动化绘制系统
《丰海港口工程设计计算软件》已成为水运行业中比较完善的结构设计计算软件系列。在改进和完善设计计算软件的同时,我们致力于开发实用化的港口专业自动化绘图软件,高桩梁板式码头总图自动化绘制系统是本公司继沉箱自动配筋系统之后的又一个新的尝试。
本系统依据《港口工程制图标准》(JTJ206-96)进行开发。
一.系统简介
本系统采用ObjectARX[1]进行AutoCAD二次开发。系统包含:码头平面布置图、码头立面图、码头断面图、码头桩位图、码头梁板布置图等五个模块。
总图的五张图纸中平面图、梁板图、桩位图的排架信息、桩基布置等信息是相同的。因此程序采用了数据导入的方式解决此问题,即绘制梁板图和桩位图时可以从平面图读取相关数据。这样可以简化输入,避免工程数据错误。程序还预设了常用设施默认值,减少数据输入量提高效率。
1.码头平面布置图
码头平面图是高桩梁板式码头的俯视图,可以绘制由1)码头+后方平台;2)码头+后方平台+引桥;3)码头;4)码头+引桥构成的四种类型的码头,同时可添加系缆墩和辅助平台结构。
通过“码头设备布置信息”窗口,可以详细设定系船柱、工作孔、护舷舷梯、竖向橡胶护舷、横向橡胶护舷、爬梯、给水口、配电箱、灯杆、消火栓、轨道与车挡、顶升防倾防滑等设备在平面图中的布置信息。其中,系船柱和橡胶护舷都建立了常用设备数据库,通过菜单方式选取操作,方便快捷。平面图中输出码头设备一览表,可以对使用设备做数量统计。
以码头+引桥为主体结构、右侧有系缆墩、后方有辅助平台的高桩梁板式码头作为例(以下相同)。码头平面布置图的绘制结果如图1所示。

图1 码头平面布置图绘制实例

图2 平面图细节
2.码头立面图
码头立面图是高桩梁板式码头的前视图,只涉及到码头前沿部分,包括码头前沿桩基、码头前沿结构、系缆墩、码头设备等布置信息。码头立面图可以绘制现浇横梁、等高连接(大桩帽节点)两种结构类型的码头。
码头设施包括:系船柱、护舷舷梯、橡胶护舷、爬梯等部件。其中,系船柱、护舷舷梯、橡胶护舷都有常用设备数据库备选。
同样以上述码头为例,码头立面图的结果如图3所示。

图3 码头立面图绘制实例
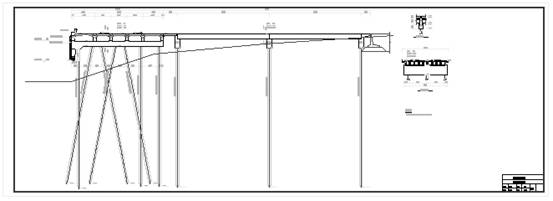
3.码头断面图
码头断面图是高桩梁板式码头的侧视图,涉及码头、后方平台、引桥及挡土墙等全部码头构件,参数数量在总图五张图中最多。
码头断面图可绘制1)单侧码头;2)码头+平台+L型挡土墙;3)码头+引桥+L型挡土墙;4)码头+平台+引桥+L型挡土墙;5)码头前后都有靠船构件;6)两个码头相接等六种结构类型的码头。
码头横梁考虑了横梁下节点放大的情况,可布置系船柱、靠船构件、护舷、剪刀撑等设施。
平台与引桥的连接方式有牛腿和简支板两种方式,引桥和挡土墙之间的连接也采用牛腿或简支板连接两种方式。
同样以上述码头为例,码头断面图的结果如图4所示。

图4 码头断面图绘制实例

图5 断面图细节
4.码头桩位图
桩位图主要描述高桩梁板式码头的桩基布置情况,可以绘制与码头平面布置图相应的四种类型的码头。同时可以增加系缆墩、辅助平台等结构。
一个码头有上百个桩基是常事,考虑碰桩是桩位布置最主要的课题。桩位图模块已内嵌碰桩验算的计算程序,桩基参数输入完毕后进行验算。当出现小于最小净距桩时标出不合格桩基,方便用户重新布置。经过反复调整,全部桩基满足碰桩要求即可出图。
同样以上述码头为例,码头桩位图的结果如图6所示。

图6 码头桩位图绘制实例
5.码头梁板布置图
梁板布置图主要描述高桩梁板式码头顶面的面板布置情况,并统计各类型尺寸面板的数量。可以绘制与码头平面布置图相应的四种结构类型的码头。码头结构部分有两种可选,现浇横梁或现浇大节点。
同样以上述码头为例,码头梁板布置图的结果如图6所示。

图7 码头梁板布置图绘制实例
绘图系统运行时,AutoCAD命令窗口会显示操作提示信息和出图错误信息,用户可根据提示操作和修改。
生成图纸时需要在当前窗口指定插入点,重新生成时在同一个窗口指定另一个插入点。这样可以避免开多个窗口,并且方便比较和修改。由于ObjectARX对AutoCAD进行直接函数调用,因此出图效率非常高,几乎是瞬间出图。
输出的图纸能够满足工程招投标阶段出图要求,已达到95%的工作量;与施工图标准相比,已达到80%的工作量。
二. 梁板配筋图的自动绘图系统
在高桩梁板式码头总图的自动绘图基础上,本系统还增加了梁板结构配筋图的自动绘制功能。
结构配筋绘图系统包括码头预制面板配筋图、纵向梁系配筋图、码头现浇横梁配筋图、靠船构件及水平撑配筋图、引桥横梁配筋图等五个模块,具有以下功能:
1)可绘制带泄水孔、板边开缺口等矩形预制面板的结构配筋图;
2)可绘制纵梁、边梁、轨道梁及现浇悬臂梁等多种纵向梁的结构配筋图;
3)可绘制等截面横梁及端部落低、下横梁局部垫高、上横梁局部放大等变截面现浇倒T型横梁的结构配筋图;
4)可绘制码头预制悬臂式矩形或T型靠船构件的结构配筋图;
5)可绘制矩形或倒T形截面引桥现浇横梁的结构配筋图;
6)能根据所绘制内容进行钢筋自动分类编号和统计计算,并生成相应的材料数量表。
配筋绘图系统输出的配筋图如下(图8)

图8 横梁配筋图实例
三.成果及展望
使用本绘图系统,能极大提高工作效率、缩短设计周期,降低设计人员的劳动强度。
本绘图系统的问世,填补了国内港口工程行业自动绘图领域的空白,大幅提高本行业自动化程度,使设计人员有效利用现代科技手段,摆脱繁琐的重复劳动。
但是,本软件目前只是单一的绘图系统,今后可以将绘图与计算软件相结合,把港口工程设计流程进一步程序化、一体化。
在保证工程结构的安全性、耐久性和经济性的同时,实现港口工程设计的自动化和简易化是今后港口工程设计的一个重要的发展方向。发展和完善港口工程设计计算软件和自动绘图系统,对于港口建设的发展具有重要意义。本项目得到《上海市科技型中小企业技术创新基金》(0801H135600)和《国家科技型中小企业技术创新基金》(09C26213100605)的资助,特别予以感谢。
注:
[1] ?ObjectARX是AutoDesk公司针对AutoCAD平台上的二次开发而推出的一个开发软件包,它提供了以C++为基础的面向对象的开发环境及应用程序接口,能真正快速的访问AutoCAD图形数据库。
参考资料
1. 《AutoCAD VBA & VB.NET开发基础与实例教程》 曾洪飞、张帆、卢择临 编著,北京:中国电力出版社. 2008
2. 《港工建筑物》 邱驹 主编,天津:天津大学出版社. 2002;
3. 《港口工程制图标准》(JTJ206-96)北京:中华人民共和国交通部. 1996。
|